Wiler bei Seedorf:
Zu verkaufen in Wiler bei Seedorf Bauernhaus/Reiterparadies
Objekt-Nr.: 910






Preis:
Preis auf Anfrage
Wohnfläche ca.:
241 m²
Grundstück ca.:
2`400 m²
Zimmeranzahl:
7
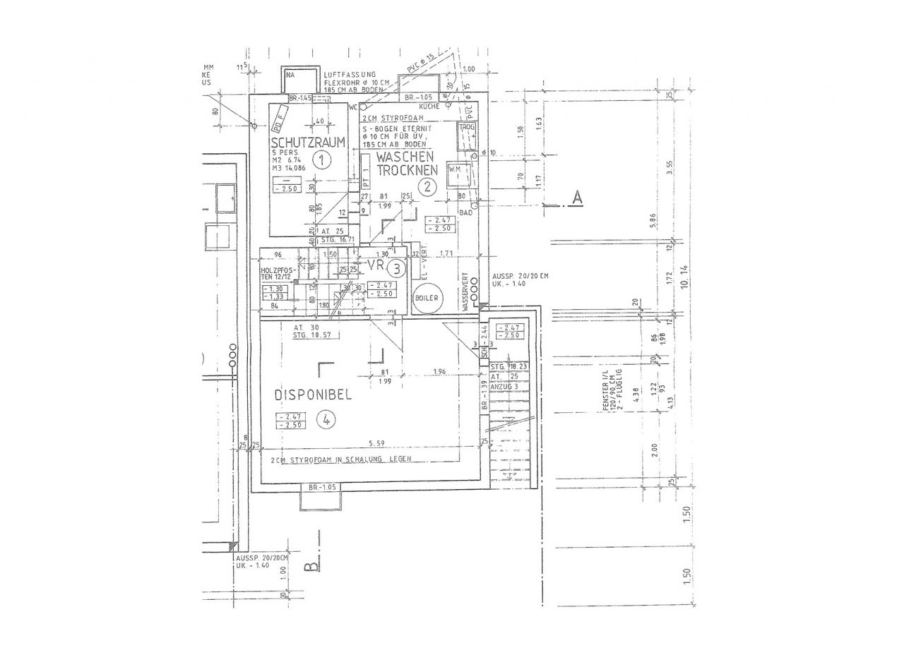
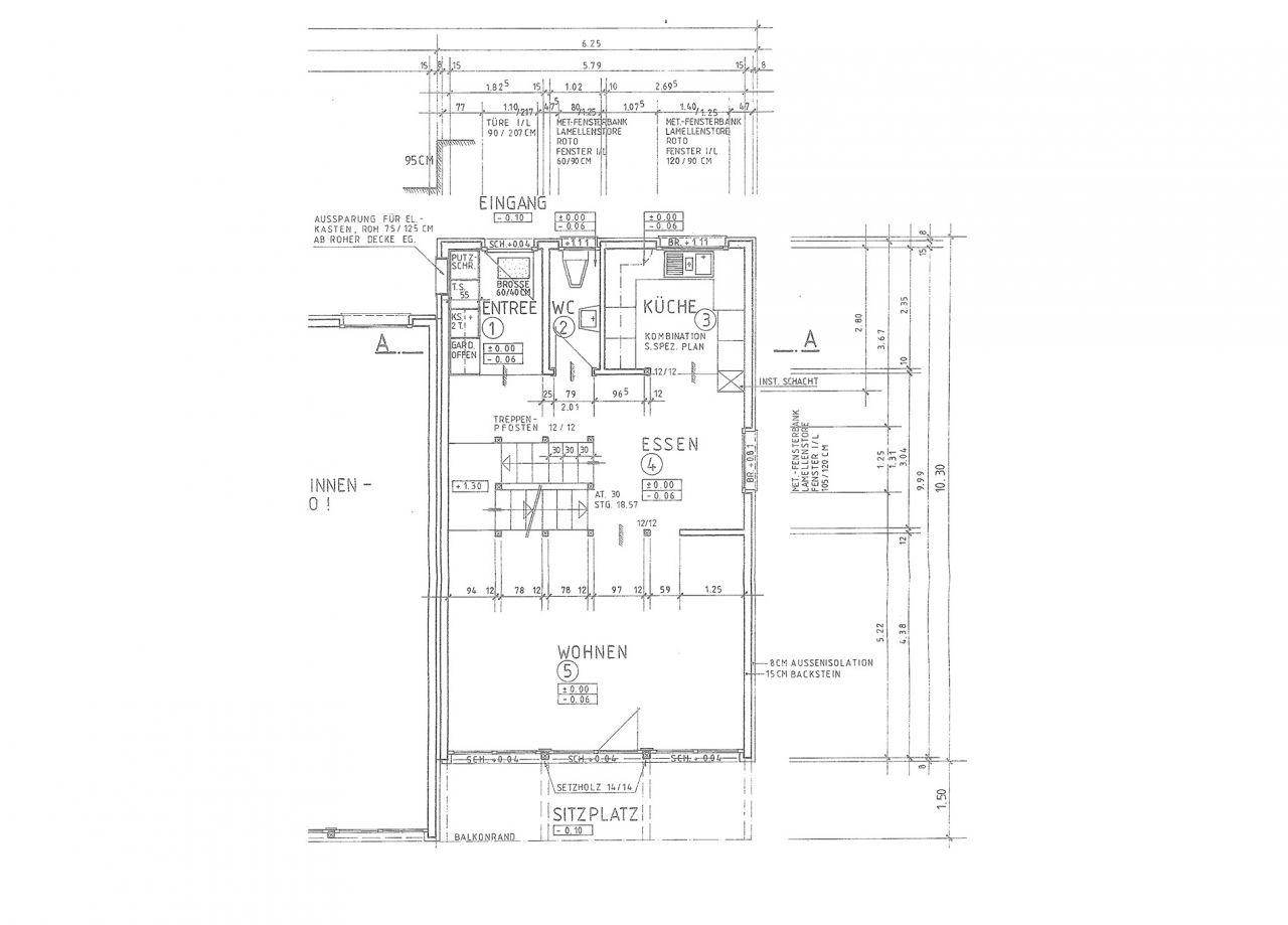
Das bestehende Bauernhaus wird total saniert
mit 7 Zimmer und 241 m2 Wohnfläche.
Im Scheunenteil ist geplant 4 Pferdeboxen zu erstellen.
Der Verkaufspreis liegt zwischen 1.4-1.7 Mio Fr. je
nach Ausbaustandard. Es kann ein Landanteil von
7143 m2 dazu gepachtet werden.
Haustyp: Bauernhaus
Etagenanzahl: 2
Nutzfläche ca.: 241 m²
Anzahl Schlafzimmer: 6
Anzahl Badezimmer: 2
Anzahl der Parkflächen: 1
Verfügbar ab: nach Vereinbarung
Die von uns gemachten Informationen beruhen auf Angaben des Verkäufers bzw. der Verkäuferin. Für die Richtigkeit und Vollständigkeit der Angaben kann keine Gewähr bzw. Haftung übernommen werden. Ein Zwischenverkauf und Irrtümer sind vorbehalten.
Wir weisen auf unsere Allgemeinen Geschäftsbedingungen hin. Durch weitere Inanspruchnahme unserer Leistungen erklären Sie die Kenntnis und Ihr Einverständnis.
Das könnte Ihnen auch gefallen
Bauernhaus in traumhafter Lage mit 2,5 Ha Land
Charmantes 4.5 Zimmer Reiheneckhaus mit Garage













































